Digital Ceramic Printing_Glass Farm_MVRDV
Project: Glass Farm
Location: Schijndel, Netherlands
Year: 2013
Architect(s): MVRDV
During the Second World War, Schiejndel's Market suffered considered damages, and they have been carried out several expansions and refurbishments. MVRDV proposed several opcions to occupy the emptiness of the town square.
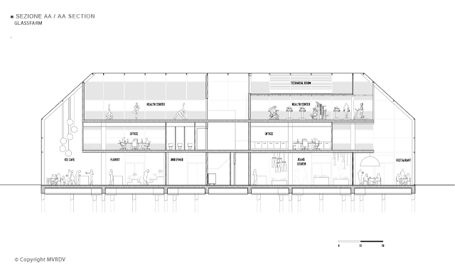
The building, with an area of 1600 m2, is totally covered by a glazing facade, and its is constituted by restaurants, shops, and health-center. To design the facade, MVRDV together with the artist Frank van der Salm, made a photographic study of the traditional local farms to generate an ideal average for the creation of the image that it used for the facade.
This image was printed using the sintered procedure on the glass facade, giving like turned out a vitral effect. The impression is more or less translucent depending on the need for light and views.
Glass Farm-Facade pictures (A); Diagrams of Printed facade design and Scale concept(B/C).
Video showing how it was carried out the Sintered procedure of the facade.
Glass Farm-Cross section (A); Floor plan (B); Facade's construction detail (C)
Sources:
-"Glass Farm". ArchDaily, March 2015
http://www.archdaily.com/607925/material-minds-digital-ceramic-printing-in-mvrdv-s-glass-farm/
http://www.plataformaarquitectura.cl/cl/02-228345/granja-de-vidrio-mvrdv








No hay comentarios:
Publicar un comentario